INMUEBLE OKUPADO SITUADO EN LA CALLE CREU DE´N FINS, MATARÓ, BARCELONA.

Piso en venta en Mataró, Barcelona

Mataró

Ref. 5210 59 m2 3 1
venta: 80.910 

INMUEBLE OKUPADO

SITUADO EN LA CALLE CREU DE´N FINS, MATARÓ, BARCELONA.

No se puede visitar, no se puede tasar ni se puede hipotecar. Se tiene que comprar pagando al contado y el comprador asume la tarea de la desocupación.

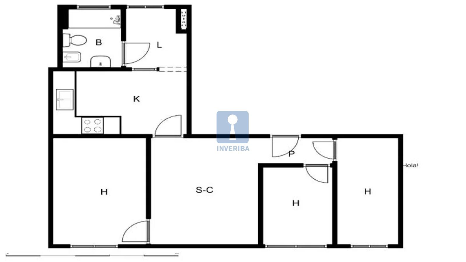
Práctico piso en Mataro, Barcelona, ideal para familias. El inmueble dispone de una superficie de 59 m² construidos distribuidos en 3 habitaciones, salón-comedor, cocina con acceso al lavadero además de 1 baño completo. La vivienda es muy luminosa. Situado en el principal del edificio, sin ascensor. Ubicado en el corazón de Mataro, en sus alrededores encontramos el centro sanitario CAP Ronda Prim, la Institut Escola Mar Mediterrània, supermercados, bancos, bibliotecas, farmacias, oficinas de correos y centros deportivos. Con fácil acceso a C-1415c.

Índice de alquiler

Año de construcción 1964
Construidos 59 m2
Útiles 59 m2
Precio/m² 1.371
Dormitorios 3
Baños 1
Calificación Energética En trámite

Calculadora de Hipotecas:

%
años

Inmuebles similares:

 
Piso en Mataró, con 92 m2 y 4 habitaciones y 1 baños.
93.000 €
 92 m2  4  1
 
Piso en venta en Mataró, con 60 m2 y 2 habitaciones y 1 baños.
87.000 €
 60 m2  2  1
Contacta con tu asesor
Marc Valls (Venta)
Solicita información

Si deseas más información sobre esta propiedad, por favor, rellena el formulario: